Welcome To Luxury… 942 East 9th Street in Midwood Brooklyn

Presented By Rosie Dayan of Century 21 MK Realty

The house of your dreams exists in Midwood, Brooklyn!

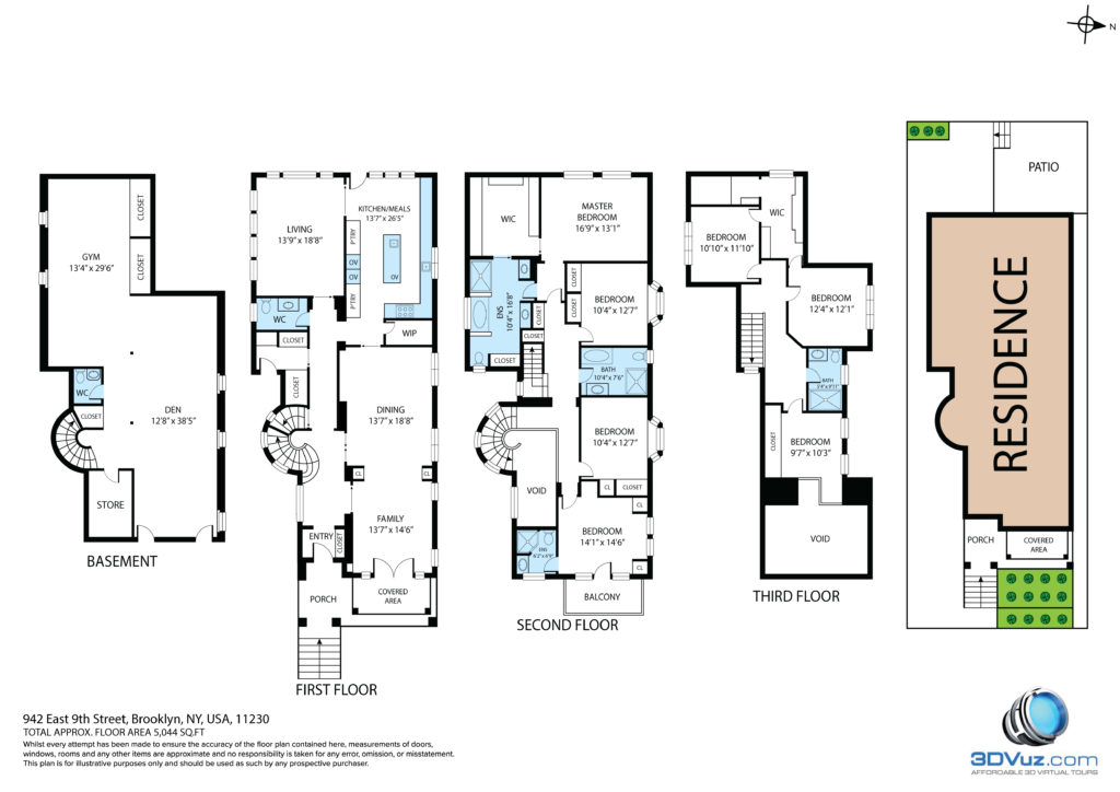
This magnificent Luxury detached, 1-family, 6- bedroom plus an office 4.5 bath property sits on 4,000 square feet of land measuring 40 feet wide by 100 feet deep. The liveable square footage is over 4,000 sq feet plus basement. It features a well-manicured front yard, private driveway and charming back porch entertainment area perfect for barbecues and gatherings. The first floor starts with a foyer leading into the main hall with a beautiful staircase and on your right is a well appointed dining room which can easily entertain 14-16 guests. Next, is an incredibly well-organized and designed eat-in-kitchen with granite island and countertops, elegant cabinetry and stainless steel appliances. On this same floor is an additional family room/parlor with anole seating area , recessed lighting and warm touches. The second floor has the most elegant master bedroom with on-suite master bath, three more bedrooms that can each accommodate California-king sized beds with furniture and a full-bathroom with vanity area, luxury tub, and separate luxury shower. The third-floor has two more bedrooms and an office along with a well designed and decorated full-bath. The completely finished basement contains a large family room, private gym area , a laundry room with large pantry, sinks and cabinetry, and a bathroom. There is radiant heat and 4 zone central air conditioning. Do not miss the chance to see this discreetly hidden gem on a picturesque, quiet, tree-lined block, steps away from shopping, transportation, and houses of worship.

Call us today.

  • Area Midwood
  • Type One Family
  • Bedrooms 6+
  • Bathrooms 4.5
  • Lot Size 40x100
  • Building 4000+ Sq Ft
  • Price Ask Sarah!

CONTACT

Please use the form below to reach out.

All media material on this site is owned by 3D VUZ INC, and is being used under license by the presenter. Do NOT duplicate without written permission from 3D Vuz, Inc.
3D VUZ (like VIEWS)

Welcome To Luxury… 942 East 9th Street in Midwood Brooklyn

SHARE THIS PAGE