Welcome To 963 East 31st Street

Presented By Karen Behfar & The BEHFAR Team! Call For Information or Appointment

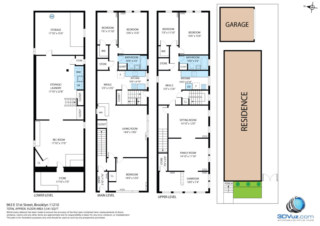
Welcome to 963 East 31st Street, a meticulously maintained fully detached 2-family home nestled in Prime Midwood, offering the perfect blend of comfort, convenience, and timeless charm.

The first floor greets you with a sun-drenched, spacious layout adorned with elegant parquet flooring. Discover three inviting bedrooms, offering ample space for rest and relaxation, along with a full bathroom. The eat-in kitchen provides ideal space for culinary creations and casual dining.

Ascending to the second floor, you’ll be greeted by high ceilings and three additional bedrooms. A full bathroom and another charming eat-in kitchen complete this level, providing convenience and functionality.

Descend to the finished basement, where a large recreation room awaits, perfect for gatherings and entertainment. Ample storage space, and a convenient half bathroom adds to the home’s appeal.

Outside, a wide shared driveway leads to a private garage, providing parking convenience in this bustling neighborhood.

This home offers proximity to an array of conveniences, including public transportation, shops, restaurants, and houses of worship.

  • Area Midwood
  • Type Two Family
  • Style
  • Lot Size 28 x 100
  • Build Size 19.5 x 60
  • Bedrooms 6 (3 over 3)
  • Baths 2.5
  • Zoning R4
  • Taxes $9,384
  • Price $1,350,000

CONTACT

Please use the form below to reach out.

All media material on this site is owned by 3D VUZ INC, and is being used under license by the presenter. Do NOT duplicate without written permission from 3D Vuz, Inc.
3D VUZ (like VIEWS)

Welcome To 963 East 31st Street

SHARE THIS PAGE