Welcome To 71 Coffey Street Red Hook Brooklyn NY 11231

Presented By Alex Calabretta

Built in 2006, 71 Coffey St. was considered one of the most unique projects in Brooklyn and part of the re-development of Red Hook. Now is your opportunity to own a piece of history.

Welcome to 71 Coffey St

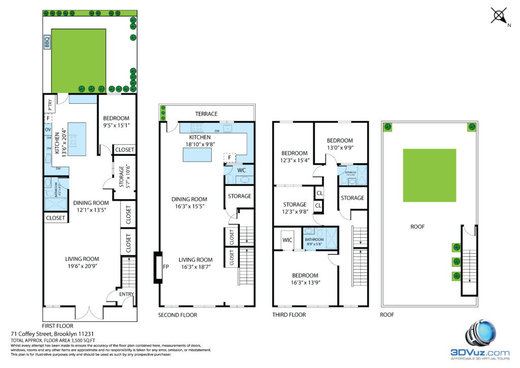
Ideally located in one of Brooklyn’s most charming waterfront neighborhoods, 71 Coffey is a unique light filled three story carriage house that is located on a quiet cobblestone street in one of Brooklyn’s most popular waterfront neighborhoods. This building is fortress like and is approximately 4,293 sqft. The building is on a 75ft lot with 25.25×60 on the first floor and 25.25×55 on the upper two floors.

The ground floor is a renovated two bedroom apartment with 14ft ceilings, and features a spectacular chefs kitchen with custom cabinetry, stone countertops, 2 convection ovens, a six burner stove with a grill, a wine fridge, an ice maker, trash compactor and a built in microwave. There is also a private outdoor space for you to enjoy your mornings, days and evenings having a barbecue or just relaxing with friends.

Leading to the upper floor you will enter a stunning upper duplex that has 10ft ceiling on the first level. The kitchen has been renovated with white custom cabinets outfitted with Restoration Hardware nickel handles, soapstone countertops, and a Blue Star oven. All appliances are stainless steel.

The living room has an electric fireplace and features oversized windows bringing in the most eye catching light throughout the day while the door off the kitchen leads to a 168 square foot terrace taking up the entire width of the building.

The second level of the upper duplex features four bedrooms, two full bathrooms, 12ft ceilings, hardwood floors and oversized windows. The master bedroom has a walk-in closet and an on suite bathroom. All bathrooms are renovated with Blanc Italian porcelain tiles and Grohe fixtures. Down the hall is an office plus two additional bedrooms as well as a full second bathroom.

Finally, leading upstairs is a 1,375 sqft roof deck with white absolute granite floors, a faucet for a hose and electric. Up there, you you will find stunning 360 degree views of Red Hook, the NYC skyline the Statue of Liberty as well as many other NYC landmarks.

Near shops and restaurants and close to the waterfront park makes this gem a prime and convenient location. Come see one of Red Hook’s beauties and you will fall in love.

  • Area Red Hook
  • Type 2 Family
  • Style 3 Story Carriage House
  • Lot Size 25.25 x 75
  • Build Size 25.25 x 60
  • Bedrooms 6
  • Bathrooms 4
  • Zoning M1-1
  • Taxes $4,139
  • Price $2,995,000

CONTACT

Please use the form below to reach out.

All media material on this site is owned by 3D VUZ INC, and is being used under license by the presenter. Do NOT duplicate without written permission from 3D Vuz, Inc.
3D VUZ (like VIEWS)

Welcome To 71 Coffey Street Red Hook Brooklyn NY 11231

SHARE THIS PAGE