Welcome To 2052 East 28th Street in Heart Of Madison

Esther Chirazi & The BEHFAR Team Presents ANOTHER Amazing Home.. Contact us TODAY!

New Home for Sale in Madison – 2052 East 28th Street
Presented by Esther Chirazi | The Behfar Team
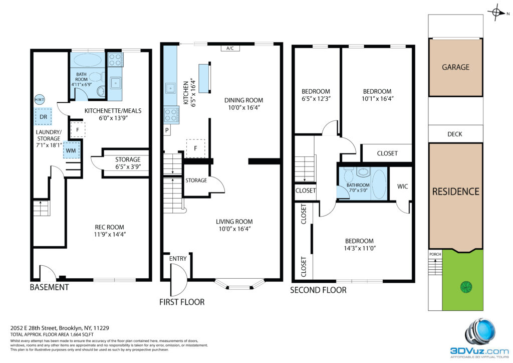
We’re proud to introduce this lovely single-family brick home, tucked away on a quiet, tree-lined block in the heart of Madison, Brooklyn. Set on an 18 x 100 lot with an 18 x 35 build, this home offers a comfortable layout, flexible living spaces, and charming details throughout.
The entry opens to a welcoming foyer that leads into a sun-filled living room, a formal dining room, and a kitchen with great flow for everyday use. A half bathroom is conveniently located on this level. Off the kitchen, step onto a back porch—a great space to enjoy your morning coffee or entertain in a relaxed outdoor setting. A flowering tree and touches of greenery bring natural beauty to the entrance.
Upstairs, you’ll find three nicely sized bedrooms, a full bathroom, and plenty of closet space. A skylight adds a gentle touch of natural light to the second-floor bathroom without overpowering the space.
The finished basement offers added flexibility with a spacious open area, full bathroom, second kitchen, laundry room, and utility space. There’s also a private entrance to the backyard, where you’ll find the garage and private parking—a valuable bonus in this location.
If you’re looking for a move-in ready home with thoughtful updates, great light, and a warm, inviting feel, this one is definitely worth a look.
Call or text me to schedule your private showing—I’d be happy to walk you through and answer any questions
  • Area Madison
  • Type Single Family
  • Style Brick Townhouse
  • Lot Size 18 x 100
  • Build SIze 18 x 35
  • Bedrooms 3 (+1 BSMT)
  • Baths 3
  • Zoning R4
  • Taxes $6897.79
  • Price $975,000

CONTACT

Please use the form below to reach out.

All media material on this site is owned by 3D VUZ INC, and is being used under license by the presenter. Do NOT duplicate without written permission from 3D Vuz, Inc.
3D VUZ (like VIEWS)

Welcome To 2052 East 28th Street in Heart Of Madison

SHARE THIS PAGE