Welcome To 2031 New York Avenue

Let Rina Weitz & The BEHFAR Team Help you Buy or Sell ANYWHERE in Brooklyn!

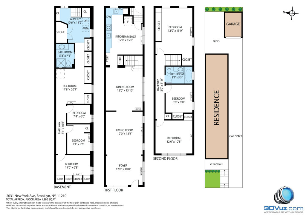
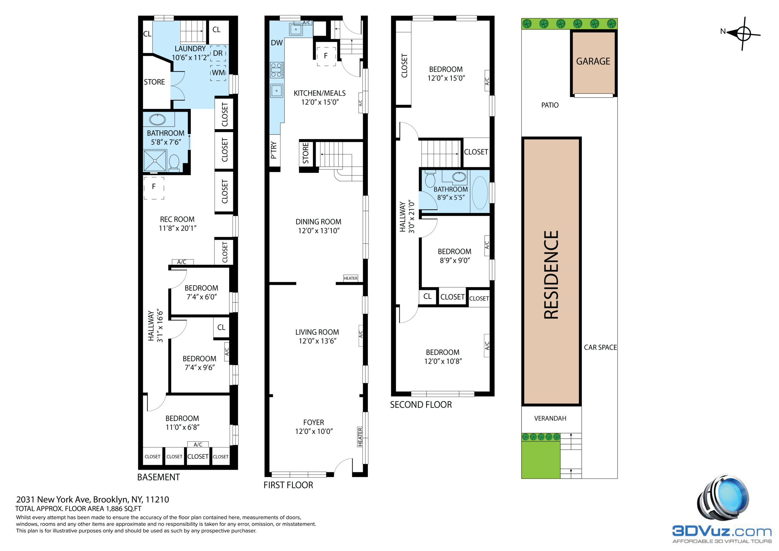
Welcome to 2031 New York Avenue, a charming semi-attached in prime Midwood home offering space, functionality, and exciting potential to make it your own.
Upon entering, you’re greeted by a bright and inviting living room and dining room layout, perfect for everyday living and entertaining. The home features an eat-in kitchen equipped with modern stainless steel appliances, offering both comfort and convenience for family meals and gatherings.
Upstairs you’ll find three well-proportioned bedrooms, each with its own closet, along with a full bathroom and a convenient linen closet for additional storage.
The finished basement provides valuable extra living space, complete with an additional bathroom, laundry area, two guest rooms, and a separate office, making it ideal for extended living, work-from-home needs, or flexible recreational use.
One of the standout features of this property is the extra-wide shared driveway with access to rear parking, a rare and highly desirable convenience. The backyard offers wonderful space for outdoor entertaining, relaxing, or creating your own private outdoor retreat.

With its practical layout, generous space, and great features, this home presents an incredible opportunity to create the home you’ve been dreaming of.
  • Area Midwood
  • Type Single Family
  • Style
  • Lot Size 20' x 100'
  • Build Size 13' x 46'
  • Bedrooms 3 + 2
  • Baths 2
  • Zoning R4
  • Taxes $7,500
  • Price $1,050,000

CONTACT

Please use the form below to reach out.

All media material on this site is owned by 3D VUZ INC, and is being used under license by the presenter. Do NOT duplicate without written permission from 3D Vuz, Inc.
3D VUZ (like VIEWS)

Welcome To 2031 New York Avenue

SHARE THIS PAGE