Welcome To 1918 Avenue O

Great Opportunity Presented By The BEHFAR Team

Welcome to 1918 Avenue O in the HEART of Midwood Brooklyn

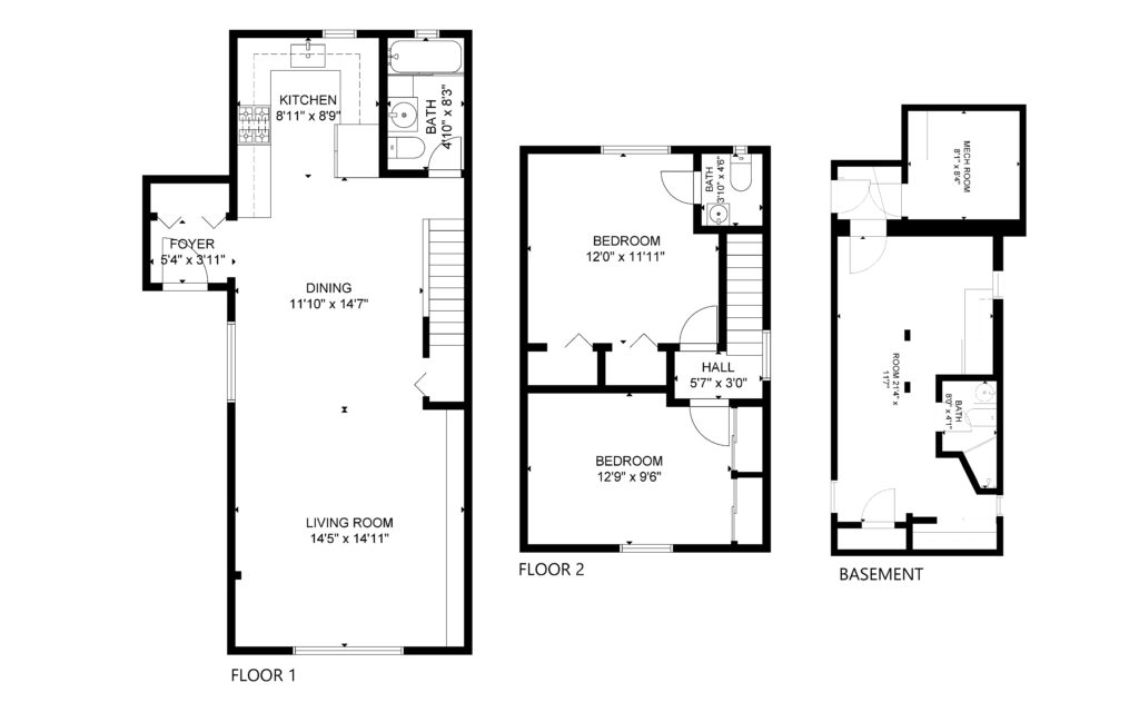
As you walk into this lovely unique single family home, you are greeted with the center hall and a nice huge coat closet. Walking into an open-concept on the first floor to your left side is the kitchen filled with beautiful tall wood cabinets, even a small breakfast nook, and stainless steel appliances. There is an open area for your formal dining room and a living room with a huge beautiful library in addition to the grand 14-foot ceilings for your quiet enjoyment. This home is immaculately kept and ready to move in.

Appearing in a nice corner on the first floor is the washer/dryer. You’ll find a full bathroom on the first floor. As you travel up the stairs, you will see two bedrooms. There’s a master bedroom with a half bath and nice, huge closets. The second bedroom also has wall-to-wall closet space.

This home is complete with private driveway, which is a gem in itself. In addition the basement has a private separate entrance. Its a one room kitchenette with a bathroom and extra storage space, great for a home office.

When you approach the house you have a nice manicured garden in the front of the house. It’s a great starter or perfect home to downgrade.

Conveniently located near transportation, near shopping, schools and house of worships.

 

  • Area Midwood
  • Type Single Family
  • STyle Colonial Duplex
  • Lot Size 30 x 40
  • Build Size 15 x 25
  • Bedrooms 2
  • Baths 3
  • Zoning R7A
  • Taxes $4,976
  • Price $775,000

CONTACT

Please use the form below to reach out.

All media material on this site is owned by 3D VUZ INC, and is being used under license by the presenter. Do NOT duplicate without written permission from 3D Vuz, Inc.
3D VUZ (like VIEWS)

Welcome To 1918 Avenue O

SHARE THIS PAGE