Welcome To 1526 East 12th Street – Presented By Baruch Asherov and The BEHFAR Team!

Great Opportunity In Midwood

Welcome to 1526 East 12th Street.

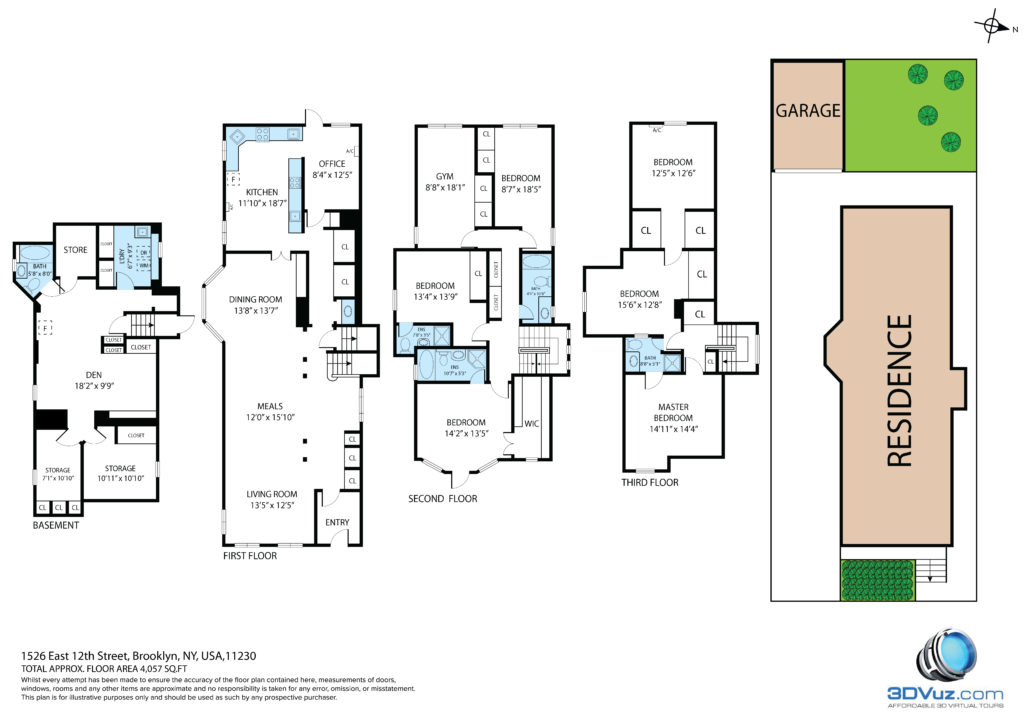
This fantastic single family is located on a great block in Midwood. The first floor has a charming foyer, two coat closets, large living and dining room. The eat-in- kitchen has lots of cabinets, three sinks, two stoves and ovens, as well as two dishwashers. This home also has a room off of the kitchen that can be used as a den or private office. A half bath and washing station finish off the first floor beautifully.

On the second floor you have a master bedroom with master bath and large walk-in closet as well as a private balcony. This floor also has a en-suite bedroom with its own bathroom and large closet. The rest of the floor has two comfortable bedrooms and a full bathroom.

The third floor has three bedrooms and one bathroom. In the basement you’ll find the laundry room, boiler room, a full bathroom, two bonus rooms as well as lots of storage.

This home has two central AC units that provide hot and cold air, a shared driveway, garage, porch off of the kitchen and a nice size backyard. This home is ready for its new owners so schedule your showing.

 

  • Area MIdwood
  • Type Single Family
  • Style Triplex
  • Lot Size 33x100
  • Build Size 21x65
  • Bedrooms 7
  • Baths 5.5
  • Zoning R4-1
  • Taxes $7,642
  • Price $1,600,000

CONTACT

Please use the form below to reach out.

All media material on this site is owned by 3D VUZ INC, and is being used under license by the presenter. Do NOT duplicate without written permission from 3D Vuz, Inc.
3D VUZ (like VIEWS)

Welcome To 1526 East 12th Street – Presented By Baruch Asherov and The BEHFAR Team!

SHARE THIS PAGE