In The HEART Of Midwood… This Detached Home Has Endless Possibilities! 1456 East 12th Street Brooklyn

Collect Great Rental Income... Great Residential Location

Welcome to 1456 East 12th Street, In the HEART of Midwood!

Location, Location, Location!!

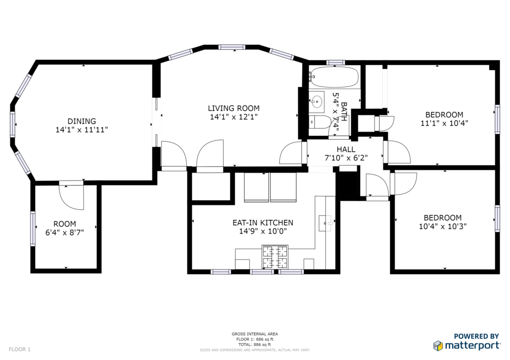
3 Family House for sale!  First floor consists of 2 bedrooms, renovated kitchen and bathroom. Second floor has 3 bedrooms with an updated kitchen and bathroom. Third floor is a 2 bedroom 1 bathroom apartment. Every floor pays their own utilities. Brand new hot water heating system. Huge backyard. Amazing Block!

  • Neighborhood Midwood
  • Type Detached
  • Lot Size 30x100
  • Building Size
  • Zoning R5B
  • Taxes $8,765
  • Price $1,200,000

CONTACT

Please use the form below to reach out.

All media material on this site is owned by 3D VUZ INC, and is being used under license by the presenter. Do NOT duplicate without written permission from 3D Vuz, Inc.
3D VUZ (like VIEWS)

In The HEART Of Midwood… This Detached Home Has Endless Possibilities! 1456 East 12th Street Brooklyn

SHARE THIS PAGE