2316 Avenue M in Midwood Brooklyn

Beautiful Residence in The HEART Of Midwood... Presented By The BEHFAR Team!

Welcome to 2316 Avenue M – PRICE ADJUSTED

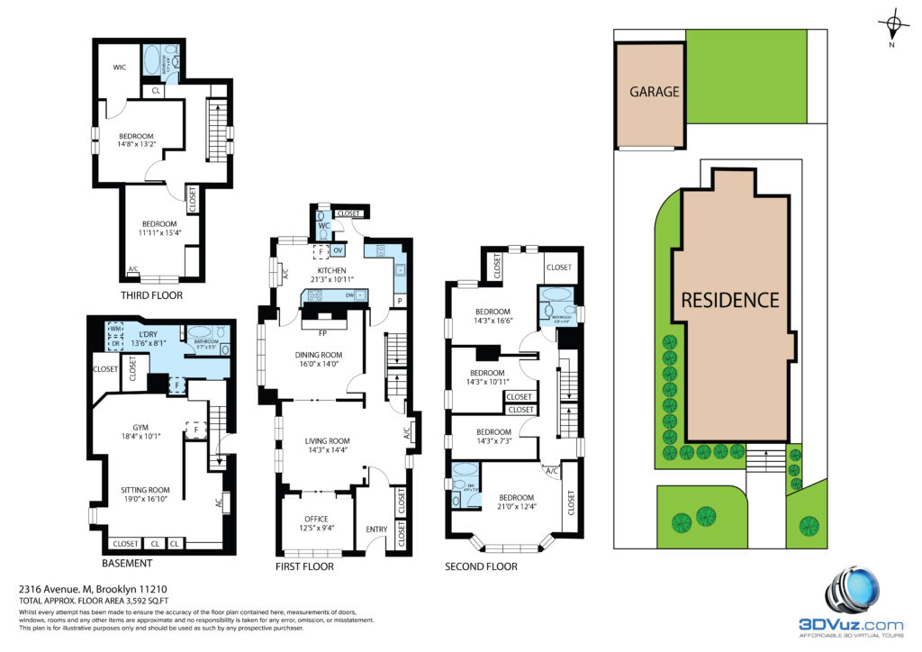
This fully detached luxury gem rests on a 40×100 lot in the heart of Midwood close to convenience, public transportation, and houses of worship.

Stroll past the impeccably manicured lawn, up the steps and swing open the door, you will be greeted by an inviting foyer with a coat closet. Advance forward, and you will be drawn into a side hallway with regal venetian coated Roman columns bordering a sun-drenched living room featuring exquisite parquet flooring, bright spotlights, and  pocket French doors which lead into a private study/office. Past the living room is another set of pocket French doors opening to a formal dining room featuring large windows, and divine coffered ceilings. In the back, there is a state of the art eat-in-kitchen, featuring 2 sinks, a load of granite countertops & elegant custom cabinetry, 2 stainless Kitchen Aid ovens, 2 microwaves, a dishwasher, pantry, and half bathroom.

The second floor boasts 4 spacious bedrooms loaded with windows & closets, including a large primary with its very own full bathroom. There is another full bathroom in the hallway as well.

The third level hosts an additional 2 comfortable bedrooms, and a full bathroom.

The basement is beautifully finished and is made up of a large open recreational/ family room, a laundry room, utility room, and full bathroom.

This home also features a private driveway, garage, a separate side entrance, new roof, boiler, hot water tank, and much more…

Grab it while it lasts, book your showing today!

  • Area Midwood
  • Type Single Family
  • Style Colonial
  • Lot Size 40 x 100
  • Build Size 22 x 48
  • Bedrooms 6
  • Baths 5
  • Zoning R2
  • Taxes $9,695
  • Price $1,799,000

CONTACT

Please use the form below to reach out.

All media material on this site is owned by 3D VUZ INC, and is being used under license by the presenter. Do NOT duplicate without written permission from 3D Vuz, Inc.
3D VUZ (like VIEWS)

2316 Avenue M in Midwood Brooklyn

SHARE THIS PAGE