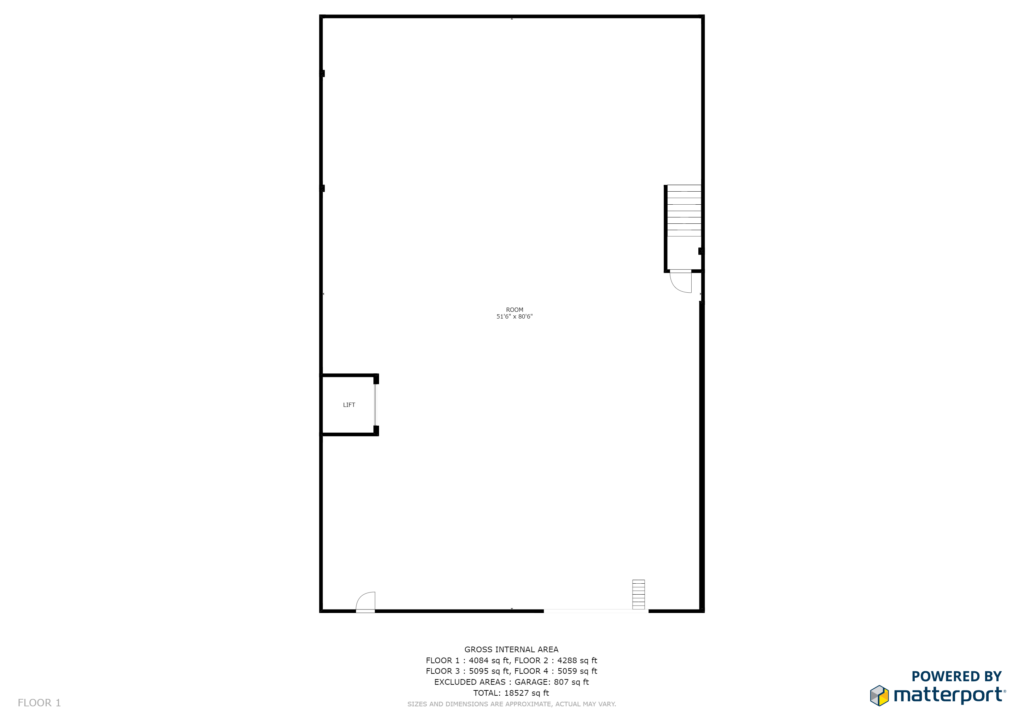
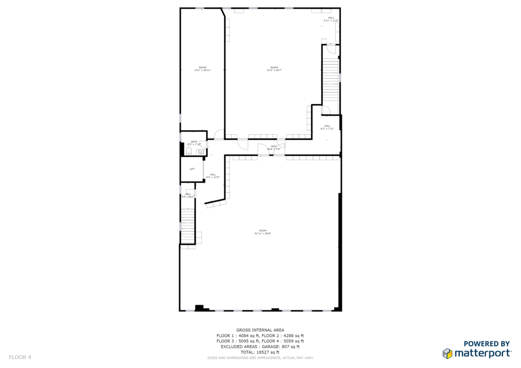
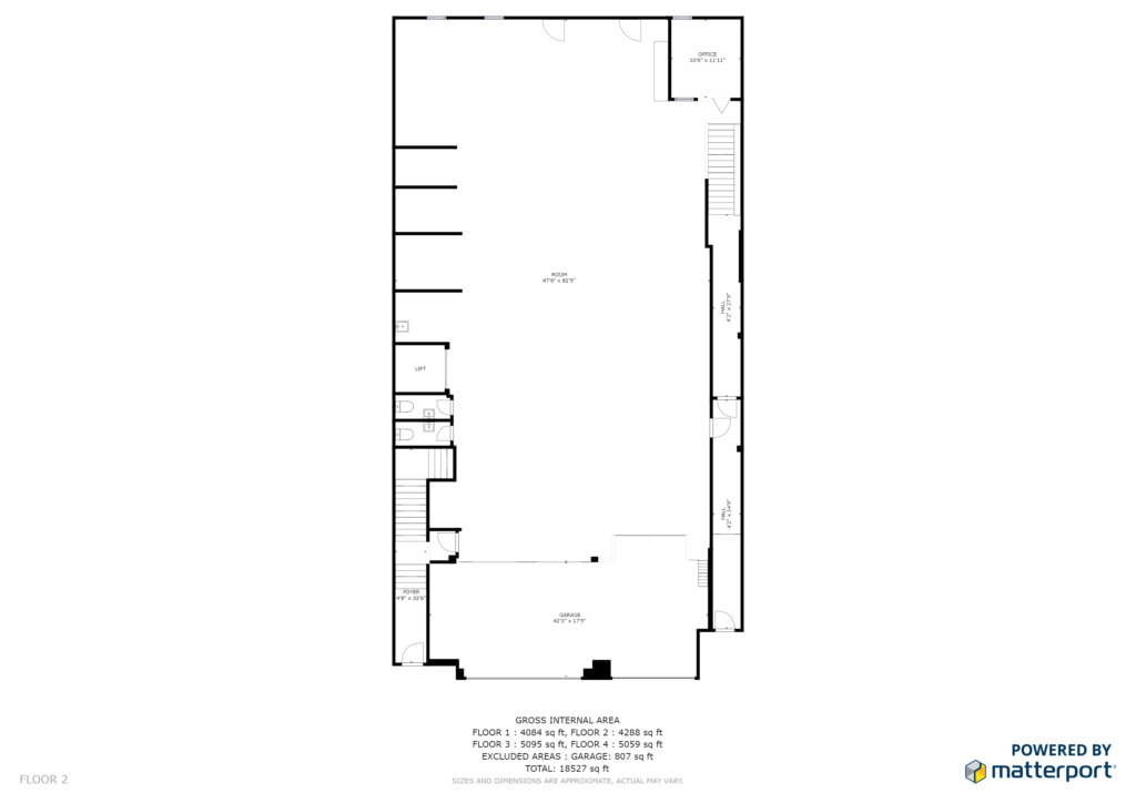
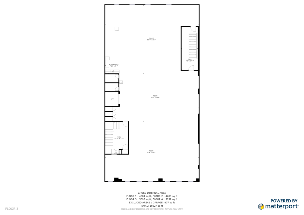
Appx 20,000 Square Feet – Commercial / Industrial Space In Sunset Park Brooklyn

Appx 5,000 Sq Ft per Floor / 4 Floors and Loading Dock

Welcome to 5113 2nd Avenue – Brooklyn NY

Fantastic Industrial/Investment Opportunity in Prime Sunset Park location on 2nd Avenue. Great for investor or end user. Building can be used for manufacturing, warehouse, investment or even development. This property is a 3 story brick structure with approximately 5000 square feet on each floor plus a 4000 square foot usable basement with high ceilings. Property includes 2 loading docks with roll up gates (room to park cars/trucks inside). Each floor has bathrooms, high ceilings, big open spaces and plenty of natural light. Building also has a 3000 pound freight elevator. Entire building has HVAC for heat and air conditioning. Fully sprinklered as well. Zoned M1-2D. Great location in up and coming area close to BQE, Belt Parkway, Gowanus, public transportation (N,W,R), and all of the areas cultural and aesthetic benefits. Entire building is in excellent condition throughout, opportunities like this are hard to find. Contact agent for exclusive showing and additional information.

CONTACT

Please use the form below to reach out.

All media material on this site is owned by 3D VUZ INC, and is being used under license by the presenter. Do NOT duplicate without written permission from 3D Vuz, Inc.
3D VUZ (like VIEWS)

Appx 20,000 Square Feet – Commercial / Industrial Space In Sunset Park Brooklyn

SHARE THIS PAGE