1856 55th Street – Boro Park Brooklyn

Daniel Sosani & The BEHFAR Team Are Proud To List & Sell This Home

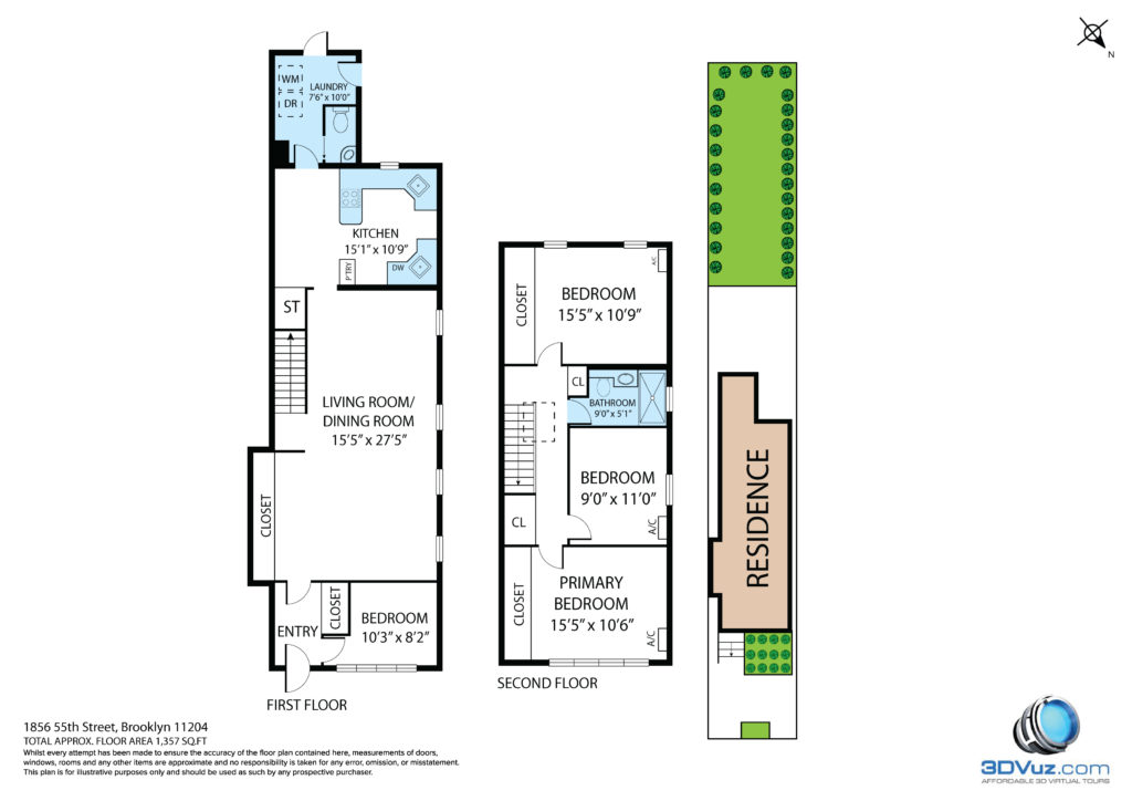
The Behfar Team is pleased to present 1856 55th Street

Located on a quiet residential block, this semi detached home with a shared driveway is the perfect house for the buyers looking to create something special.

The home needs some TLC.  On the first floor there is an open concept living/ dining room and half a bathroom with a nice sized eat in kitchen.

There is a very nice nice sized backyard giving you plenty of space for recreation or parking as lot is 126 feet long.

Upstairs 3 nice sized bedrooms and a full bathroom and tons of closets with a large skylight pouring in natural light.

Basement is unfinished waiting for your imagination

 

  • Area Borough Park
  • Type Single Family
  • Style Duplex
  • Lot Size 20 x 126.5
  • Build Size 16 x 40
  • Bedrooms 4
  • Baths 2
  • Zoning R5
  • Taxes $6,243
  • Price $1,190,000

CONTACT

Please use the form below to reach out.

All media material on this site is owned by 3D VUZ INC, and is being used under license by the presenter. Do NOT duplicate without written permission from 3D Vuz, Inc.
3D VUZ (like VIEWS)

1856 55th Street – Boro Park Brooklyn

SHARE THIS PAGE