1680 East 21st Street Brooklyn NY

Presented By The BEHFAR Team!

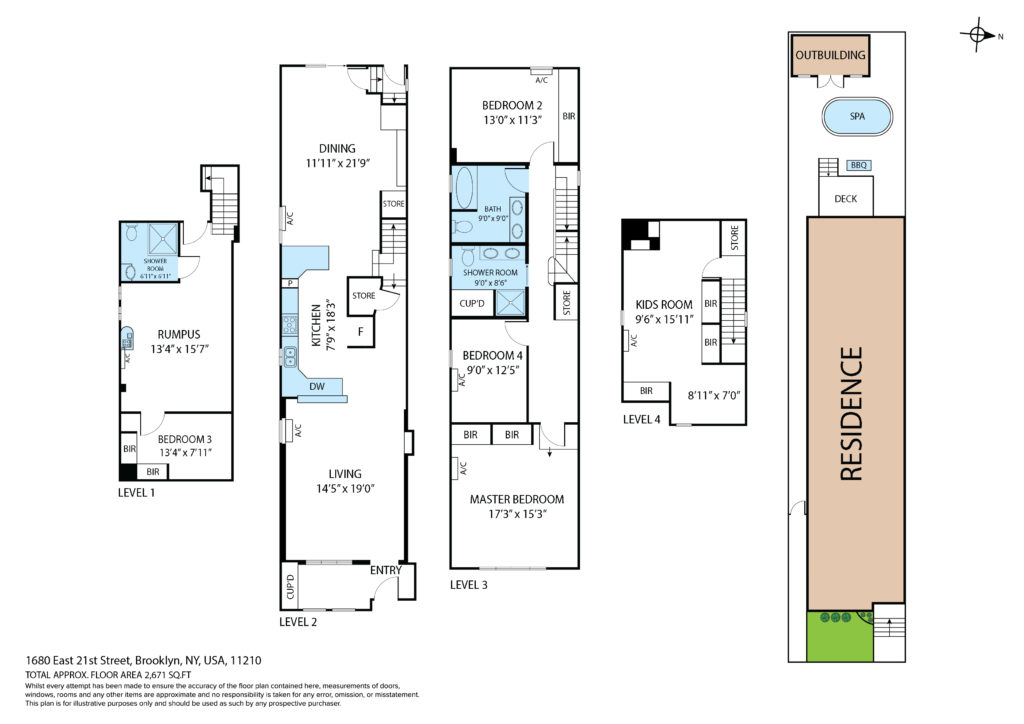
A true diamond in the rough!  This beautiful triplex with a light grey stucco exterior has all kinds of beautiful custom features! Beginning with the entrance, the porch was enclosed and made into an extension for additional custom closet space and grand foyer.  Next, you’ll find the spacious living room area which leads into the open concept kitchen.  The kitchen has updated stainless steel appliances, beautiful granite countertops, sleek mahogany cabinetry, and extended counter space that make for a nice eat-in area.  Moving on, you’ll find the nicely-sized dining room with a sliding door that leads to the deck. There’s a beautiful half bath behind the kitchen to complete the floor.  On the second extended floor, are three very nicely-sized bedrooms with wall-to-wall closets in each, and two massive full bathrooms with double sinks and laundry area! Down the long hallway, is the huge master bedroom with tons of windows and a lounge area.  Upstairs, is the third floor with one massive bedroom.  This room has three built-in custom beds, as well as custom closets. Get this-each bed has its own additional pull-out bed!  Despite the three beds, this room is quite large so the space does not feel tight at all.  Lastly, is the finished basement which you’ll find off the living room.  There’s a storage room, open play area, a bedroom, and a full bathroom with a stunning tile walk-in shower.  The basement, along with the third floor was completely gut renovated about four years ago.  There’s a shared driveway, central AC throughout, and a 6-year old heating system!  Come schedule a showing today!!

  • Neighborhood MIdwood
  • Type 2 Fam Used As 1
  • Style Duplex
  • Lot Size 20x100
  • Build Size 16x60
  • Bedrooms 4+1
  • Baths 4
  • Zoning R4-1
  • Taxes $5,097
  • Price $1,250,000

CONTACT

Please use the form below to reach out.

All media material on this site is owned by 3D VUZ INC, and is being used under license by the presenter. Do NOT duplicate without written permission from 3D Vuz, Inc.
3D VUZ (like VIEWS)

1680 East 21st Street Brooklyn NY

SHARE THIS PAGE